MODELO
Ameno 58m²
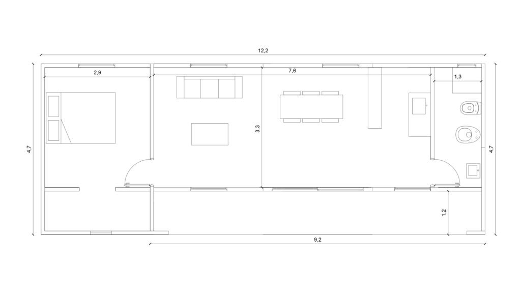
1 Habitación
1
58 m² Totales
47 m² Interior
11 m² Galería
Aluminio con vidrios colocados.
Eucalipto de Saligna, Quebracho colorado
Ameno 58m² es un modelo vanguardista que puede ser utilizado tanto como casa de fin de semana, para complejos turísticos o vivienda permanente. Tiene un concepto abierto y a su vez nos brinda una conexión de espacios espléndidos. Cuenta con 47m² de interior + 11m² de galería. Cada estructura esta construída íntegramente con madera de Eucalipto de Saligna. Aberturas de aluminio con vidrios colocados en ventanas de abrir. Baño completo.
Fácil montaje
Estructuras panelizadas y estandarizadas listas para su fácil montaje sin necesidad de contar con experiencia previa en construcción
Valor Kit p/Autoconstrucción
KIT 1 (PH):
USD 13.744
KIT 2 (PH):
USD 17.248
KIT 3 (PE):
USD 15.900
KIT 4 (PE):
USD 20.212
El mismo modelo montado por nosotros con nuestra modalidad llave en mano tiene un valor de:
USD 26.949
¿Lo hacemos por vos?
Este modelo también se encuentra disponible en modalidad Llave en Mano.
Preguntas frecuentes
No, nuestros kits están diseñados para ser ensamblados fácilmente, incluso por personas sin experiencia previa en construcción.
Sí, ofrecemos un PLAN PERSONALIZADO de hasta 12 pagos. Al cancelar la última cuota, se otorga un plazo de 90 días para la entrega del kit. En caso de dificultades para cumplir con las cuotas, se entregará el kit en proporción al monto total abonado.
Sí, todas nuestras cabañas vienen equipadas con aberturas de aluminio y vidrios colocados, proporcionando luz natural y ventilación adecuada.
Sí, nuestro equipo estará disponible en todo momento para brindarte asesoramiento previo y acompañamiento durante el proceso de montaje. Respondemos tus preguntas, te brindamos apoyo y asistencia en cada etapa del armado.
¡Por supuesto! Te invitamos a nuestro SHOWROOM de Cabañas ubicado en Pueblo Escondido, sobre Ruta 39, Km 142 en Concepción del Uruguay, E.R. Aquí podrás explorar hasta 8 modelos diferentes, conocer detalles de construcción y recibir asesoramiento personalizado.
Sí, puedes visitar nuestras instalaciones y conocer el proceso de fabricación de nuestros kits.
Sí, además contamos con logística propia para facilitar la entrega del kit a tu ubicación deseada.







